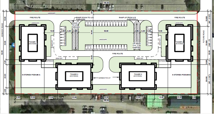
3.7 Acres Plaza located in High demand location. Potential for four 35-storey condominium buildings with 1,500 units in Scarborough. Walking distance to Milliken go train station and pacific mall.
make an appointment
request a phone call
make an appointment
request a phone call
Find a home that suits your lifestyle. Start searching!
Here is a quick search through all of our properties